LE PLESSIS ROBINSON - 611 000 € * | Réf. AVS2243
Détail du bien

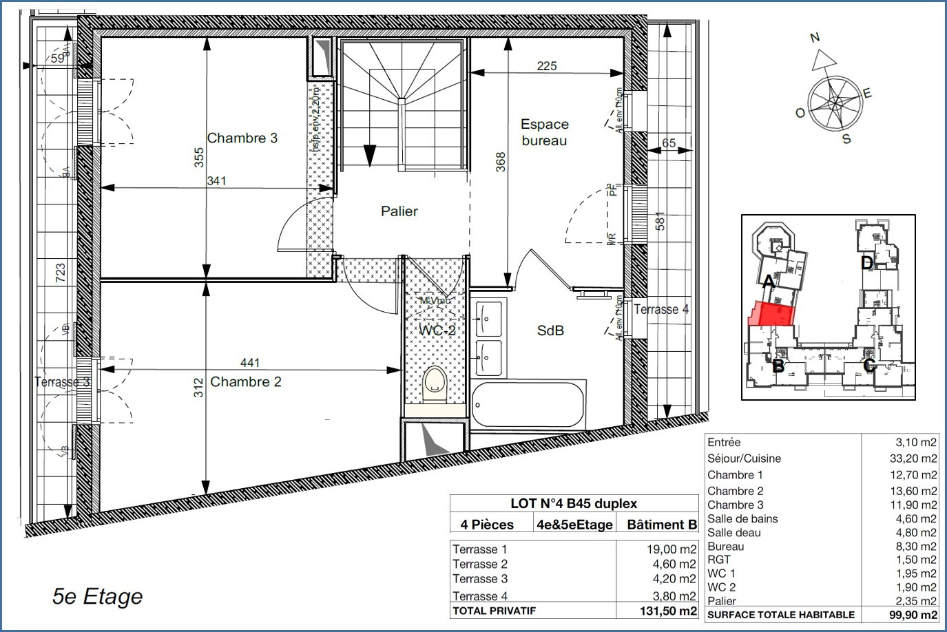
  • 100 m²

  • 4 Pièce(s)

  • 3 Chambre(s)

  • 1 sdB

  • 1 sdE

611 000 € *
  • Référence : AVS2243
  • Ville : LE PLESSIS ROBINSON
  • Transaction : Vente
  • Type de bien : Neuf
  • Prix : 611 000 €
  • Surface : 100 m2
  • Exposition : Est-ouest
  • Etage du bien : 5
  • Nbr d'étages : 5
  • Ascenseur : Oui
  • Surface séjour : 36 m2
  • Nbr de pièces : 4
  • Nbr de chambres : 3
  • Nbr SDB : 1
  • Nbr SE : 1
  • Nbr de terrasse : 4
  • Surf. terrasse : 30 m2
  • Chauffage : Gaz de ville
  • Parking : 2
Descriptif du bien
Vente Neuf
LE PLESSIS ROBINSON
611 000 € *
  • 4 Pièces
  • 3 Chambres
  • 100 m2

**FRAIS DE NOTAIRE OFFERTS jusqu'au 31 AOUT 2024.

_ Magnifique 4 pièces duplex traversant au dernier étage (4ème & 5ème étage) de 100 m² et 30 m² de Terrasses dans cette nouvelle Résidence au Plessis Robinson. Disponible au cours du 1er Trimestre 2026.

_ Ce bien comprend une grande grande pièce de réception (Entrée / Séjour / Cuisine) de 36 m² ouverte sur la grande et profonde terrasse orienté Ouest de 19 m², 1 suite parentale avec placard et Salle d'Eau privative et terrasse ainsi qu'un WC séparé.
A l'étage, 2 grandes chambres, 1 bureau, une Salle de Bain double vasque ainsi qu'un WC séparé.

_ 2 places de parking vous attendent au sous-sol.

_ Cette nouvelle résidence se situe dans le nouveau quartier avec en son coeur le grand canal. A proximité, vous trouverez à terme un nouveau Lycée, une place commerçante, un club de Tennis et enfin le nouvel hôpital Lannelongue.

Accès au Tramway T10 à 400 m de la Résidence Station Noveos (direction Clamart ou RER B Antony) et à 800 m du Tram T6 Pavé Blanc (Direction Viroflay ou Métro L13 Châtillon-Montrouge)

_ Résidence de grand standing avec accès résidence par Vigik, vidéophone, vidéosurveillance des halls, ouverture des portes des halls via smartphone, volets roulants électriques avec télécommande centralisée, etc.

_ Contactez nous par téléphone pour plus de renseignements _09_ 75_ 72_ 50_ 16_

Biens similaires

  • 4 Pièces

  • 3 Chambres

  • 110 m2

  • Réf. AVS1857
Neuf
LE PLESSIS ROBINSON
677 000 € *

  • Surface
    110 m2
  • Nbr de pièces
    4
  • Nbr de chambres
    3
  • Réf.
    AVS1857
ATTENTION FRAIS DE NOTAIRE OFFERTS JUSQU'AU 31 AOUT 2024 _ Magnifique 4 pièces duplex traversant au dernier étage (5ème & 6ème étage) de 110 m² et 25 m² de Terrasses dans cette nouvelle Résidence a...
Plus de détails

  • 5 Pièces

  • 4 Chambres

  • 143 m2

  • Réf. AVS1863
Neuf
LE PLESSIS ROBINSON
955 000 € *

  • Surface
    143 m2
  • Nbr de pièces
    5
  • Nbr de chambres
    4
  • Réf.
    AVS1863
ATTENTION FRAIS DE NOTAIRE OFFERTS JUSQU'AU 31 AOUT 2024 _ Exceptionnel appartement 5 pièces DUPLEX aux 2 DERNIERS ETAGES de 143 m² et 54 m² de Terrasses toutes expositions dans cette nouvelle R...
Plus de détails

  • 2 Pièces

  • 1 Chambre

  • 43 m2

  • Réf. AVS1968
Neuf
LE PLESSIS ROBINSON
341 000 € *

  • Surface
    43 m2
  • Surface terrain
    21 m2
  • Nbr de pièces
    2
  • Nbr de chambres
    1
  • Réf.
    AVS1968
** RETOUR ** ATTENTION FRAIS DE NOTAIRE OFFERTS JUSQU'AU 31 AOUT 2024. _ Superbe appartement 2 pièces au Rez de jardin de 43 m² et 21 m² de Jardin - Terrasse à proximité du canal dans cette nouvell...
Plus de détails

Calculette
%
%

Vos mensualités

*apport calculé sur une base de 20%

Informations non contractuelles, fournies à titre indicatif
Partager bien
Contactez-nous
AVS Immobilier

5 Avenue Carnot
91300 Massy

09 75 72 50 16

Nous suivre sur les réseaux sociaux :